
- US$ 6,600 En Renta
- 950 m² Superficie total
- 950 m² de terreno
- 5 Estacionamientos
Detalles
- Tipo: Nave
- ID: EB-SJ6390
Descripción
Lista en Octubre 20, 2025
PRECIO: US$7,000 más ITBIS REBAJADA A 6,600!!
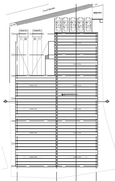
• Área de construcción 950 metros con opción para división interior y dos puertas de acceso principal
• Anden de carga con fosa para dos patanas
• Cierre perimetral en mampostería y Aluzinc en área superior
• Techo doble altura
Facilidades.
• Cisterna y séptico
• Salida para baños interiores
• 5 parqueos frontales
• Garita de seguridad
• Sector energizado 24/7 con todos los servicios disponibles
Amenidades
- Estacionamiento paralelo
- Cisterna
- Portero
Ubicación